Kömmerling 88

PROFIL

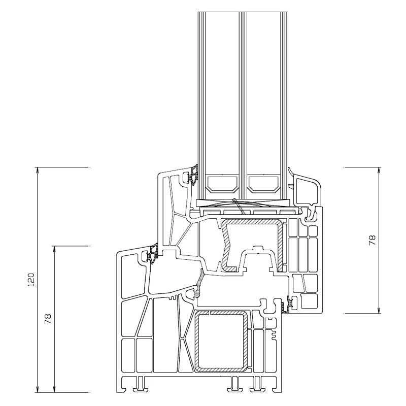
Die nach modernsten Berechnungsmethoden konstruierten Kammern sorgen für hohe Wärme- und Schalldämmung sowie für optimale Stabilität des Profils und hohe Tragkraft bei schweren Gläsern. 6 Kammer Profil, Bautiefe 76 mm. Hohe Formstabilität -Spezielle Anlagepunkte halten die Stahlverstärkung in der richtigen Position. Optimaler Schallschutz von bis zu 48 dB durch innovative Dichtungen.

BESCHLAG

Siegenia
Fehlbedienungssperre und Pilzkopfverriegelung als Basissicherheit.
Die Fensterprofile sind für den Einsatz mit speziellen Sicherheitsbeschlägen und zusätzlichen einbruchhemmenden Maßnahmen ausgestattet.

SCHEIBEN

3-fach Glas 44 mm 4/16/4/16/4, Ug=0,6
Großes Verglasungsspektrum bis 48 mm zum Einsatz moderner 3-fach Verglasungen oder spezieller Funktionsgläsern